info@ely-planning.co.uk
01223 872690
Home
About Us
Portfolio
Services
Resources
FAQs
Contact
Inspired Kitchens Cambridge
MENU
Home
About Us
Portfolio
Services
Resources
FAQs
Contact
Inspired Kitchens Cambridge
CLOSE
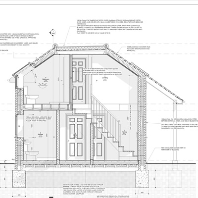
229 Milton Road, Cambridge - 1 No. Dwelling
BACK
BACK